BORGO VASAI CIELOTERRA INDIPENDENTE CON TERRAZZO PANORAMICO

Massignano (Ascoli Piceno)

Rif: DENALDMASSIGNANOAP
Condividi Linkedin Whatsapp Stampa
€ 96.000
Terratetto
174 Mq
4 Vani
Classe energetica F
2 Camere
2 Bagni
CASAPRO propone vende in Esclusiva nel cuore pulsante del centro storico di Massignano (AP), in una delle vie più caratteristiche del borgo, proponiamo in vendita una proprietà dal fascino autentico situata precisamente in Via Borgo Vasai.
Questa residenza è la scelta ideale per chi cerca la tranquillità della vita di borgo senza rinunciare alla vicinanza al mare (a soli 10 minuti dalle spiagge ) e ai servizi essenziali.
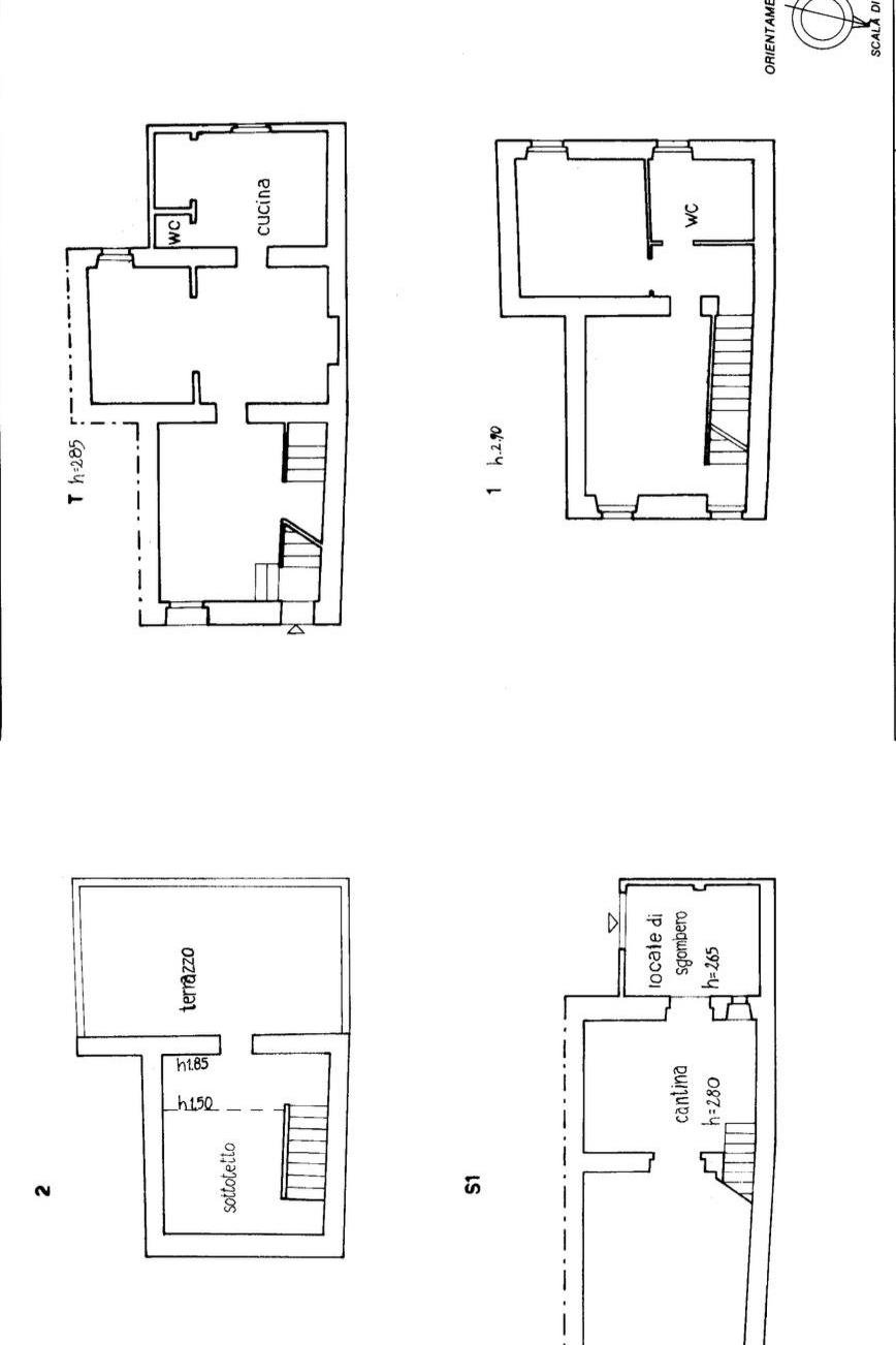
L'immobile è caraterrizato da ampi ambienti panoramici e si sviluppa in 2 piani cielo-terra + grotte in tale maniera :
*PIANO TERRA*
- Ingresso su doppia sala + sala da pranzo con camino, ambiente caldo e accogliente
- Cucina abitabile con splendida vista panoramica e lavanderia annessa
- Bagno di servizio

* PIANO 1 *
- Camera matrimoniale con vista panoramica
- Bagno finestrato
- Seconda camera matrimoniale con accesso al *PIANO 2* tramite una scala dove si accede alla soffitta e al terrazzo abitabile con vista mozzafiato .
Completano la soluzione al piano seminterrato delle Grotte a volta adibite a scantinato , ideali come taverna visto l'accesso diretto all'abitazione .
Per qualsiasi informazione non esitate a contattarci a 3381972005 CASAPRO

Dettaglio immobile

Contratto Vendita
Rif DENALDMASSIGNANOAP
Prezzo € 96.000
Provincia Ascoli Piceno
Comune Massignano
Indirizzo Borgo Vasai
Superficie 174 mq
Vani 4
Camere 2
Bagni 2
Classe energetica F (DL 192/2005)
EPI 175 kwh/m2 anno
Riscaldamento autonomo
Condizioni abitabile
Anno di costruzione 1900
Arredato si
Ascensore no
Cantina si
Parcheggio si
Cucina abitabile
Balcone si
Terrazza si
Mansarda si

Consistenze

Descrizione Superficie Sup. comm.
Principali
Immobile - piano terra 174 Mq 174 Mqc
Totale 174 Mqc

Video

Planimetrie

Richiedi maggiori informazioni

Autorizzazione al trattamento dei dati personali+
Dichiaro di aver letto l'informativa sulla privacy ed accetto le condizioni d'utilizzo del servizio.
Riempi il campo con il codice riportato nell'immagine*
Codice Captcha
Chiamaci Contattaci