AMPIO UFFICIO IN PIENO CENTRO STORICO CON GRANDE ARCHIVIO

Osimo (Ancona)

Rif: OSIM54
Condividi Linkedin Whatsapp Stampa
€ 53.000
Vendita
Ufficio
102 Mq
Classe energetica Non indicata
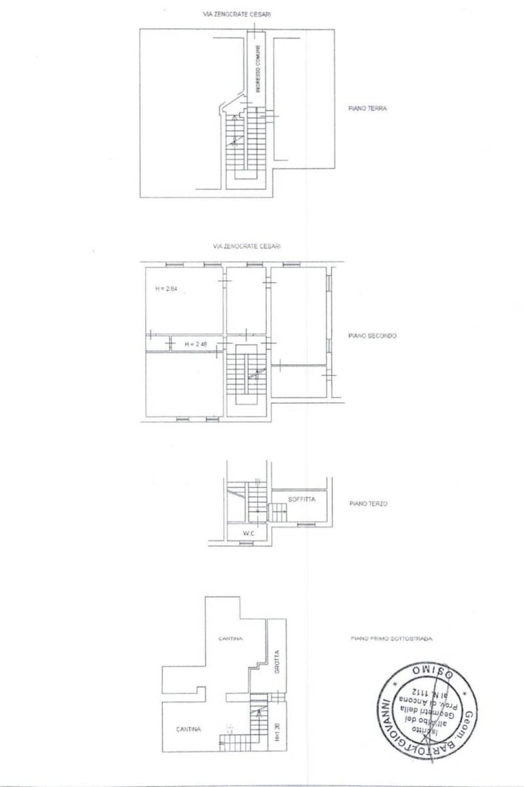
Casapro Immobiliare propone in vendita immobile da ristrutturate sito al secondo piano senza ascensore in piccolo condominio nel centro di Osimo, più precisamente in via Zenocrate Cesari, una traversa del corso principale. La soluzione attualmente è accatastata ad uso ufficio con possibilità di cambio destinazione d'uso a civile abitazione compresa compresa nell'acquisto. La proprietà si sviluppa su più livelli : - PRIMO PIANO SOTTOSTRADA - Cantina di ampia metratura (circa cinquanta mq) adibita attualmente ad archivio - Grotta - PIANO SECONDO - Soluzione principale internamente suddivisa in quattro ambienti e un bagno separati da un disimpegno, con accesso diretto a un lastrico solare (corte esterna pavimentata) di proprietà esclusiva. - PIANO TERZO - Bagno con soffitta collegati direttamente al piano secondo tramite scala. Per qualsiasi informazione o appuntamento non esitate a contattarci al 3383691422 Antonio / 3924958102 Beniamino.

Dettaglio immobile

Contratto Vendita
Rif OSIM54
Prezzo € 53.000
Provincia Ancona
Comune Osimo
Indirizzo Vicolo Zenocrate Cesari
Superficie 102 mq
Classe energetica Non indicata
Riscaldamento autonomo
Condizioni da ristrutturare
Spese condominiali € 20
Ascensore no

Consistenze

Descrizione Superficie Sup. comm.
Principali
Ufficio - 2° piano 80 Mq 80 Mqc
Magazzino - piano interrato 50 Mq 20 Mqc
Terrazza - 2° piano 20 Mq 2 Mqc
Altro - 3° piano 20 Mq 0 Mqc
Totale 102 Mqc

Video

Planimetrie

Richiedi maggiori informazioni

Autorizzazione al trattamento dei dati personali+
Dichiaro di aver letto l'informativa sulla privacy ed accetto le condizioni d'utilizzo del servizio.
Riempi il campo con il codice riportato nell'immagine*
Codice Captcha
Chiamaci Contattaci