LOCALE COMMERCIALE - LABORATORIO - APPARTAMENTO

Castelfidardo (Ancona)

Rif: ZAN*PIERP TOT
Condividi Linkedin Whatsapp Stampa
€ 690.000
Vendita
Laboratorio
679 Mq
6 Vani
Classe energetica G
CASAPRO NUMANA propone in vendita soluzione cielo terra composta da : appartamento di 130 mq circa, con soffitta abitabile e grande terrazza. Piu' locale commerciale adibito ad Asilo nido attualmente a reddito con annesso Laboratorio, il tutto circondato da corte di oltre 1000mq .
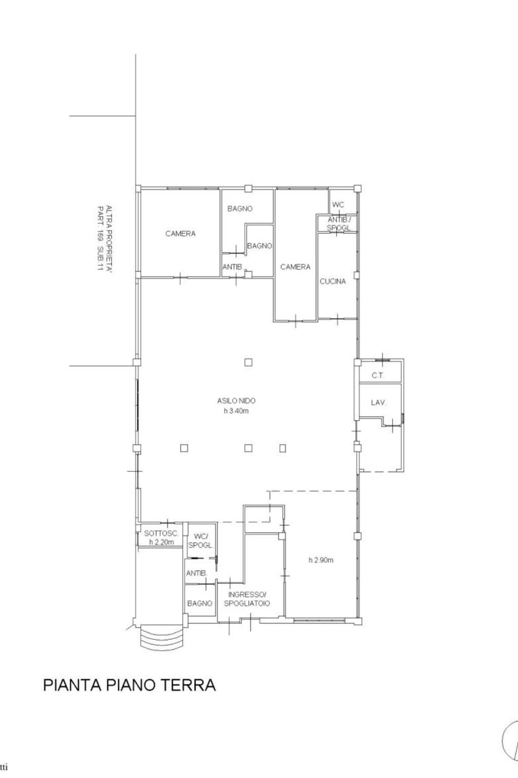
La soluzione abitativa è situata al primo piano con ingresso su soggiorno, cucina a vista, 3 camere ed 1 bagno. Accesso alla terrazza dalla zona pranzo. Secondo balcone .
L'Asilo nido si sviluppa su una superficie di oltre 370 mq completamente ristrutturato, offre diversi spazi fruibili in maniera efficiente per lo svolgimento dell'attività.
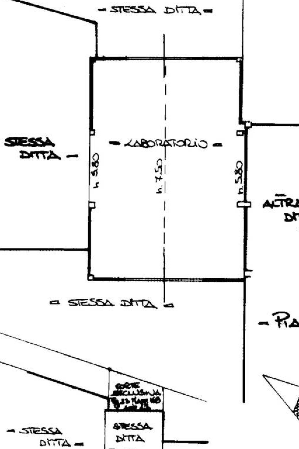
il Laboratorio, da ristrutturare, occupa circa 170mq con ampi soffitti e accesso dall'attiguo Asilo.

La soluzione commerciale si vende in blocco con l'appartamento .
PER INFORMAZIONI O VISITE CONTATTARE CASAPRO NUMANA 339/3066068 Benedetta Zandri

Dettaglio immobile

Contratto Vendita
Rif ZAN*PIERP TOT
Prezzo € 690.000
Provincia Ancona
Comune Castelfidardo
Indirizzo Via Ernesto Che Guevara
Superficie 679 mq
Vani 6
Classe energetica G (DL 192/2005)
EPI 65 kwh/m2 anno
Riscaldamento autonomo
Condizioni ottime condizioni
Ascensore no

Consistenze

Descrizione Superficie Sup. comm.
Principali
Negozio - piano terra 378 Mq 378 Mqc
Laboratorio - piano terra 171 Mq 171 Mqc
Altro - 1° piano 130 Mq 130 Mqc
Totale 679 Mqc

Video

Planimetrie

Richiedi maggiori informazioni

Autorizzazione al trattamento dei dati personali+
Dichiaro di aver letto l'informativa sulla privacy ed accetto le condizioni d'utilizzo del servizio.
Riempi il campo con il codice riportato nell'immagine*
Codice Captcha
Chiamaci Contattaci