BIFAMILIARE SUL MONTE CONERO

Ancona - zona Poggio - Massignano

Rif: ZAN*DELCO6
Condividi Linkedin Whatsapp Stampa
€ 530.000
Villa plurifamiliare
148 Mq
6 Vani
Giardino
Classe energetica F
3 Camere
2 Bagni
Garage
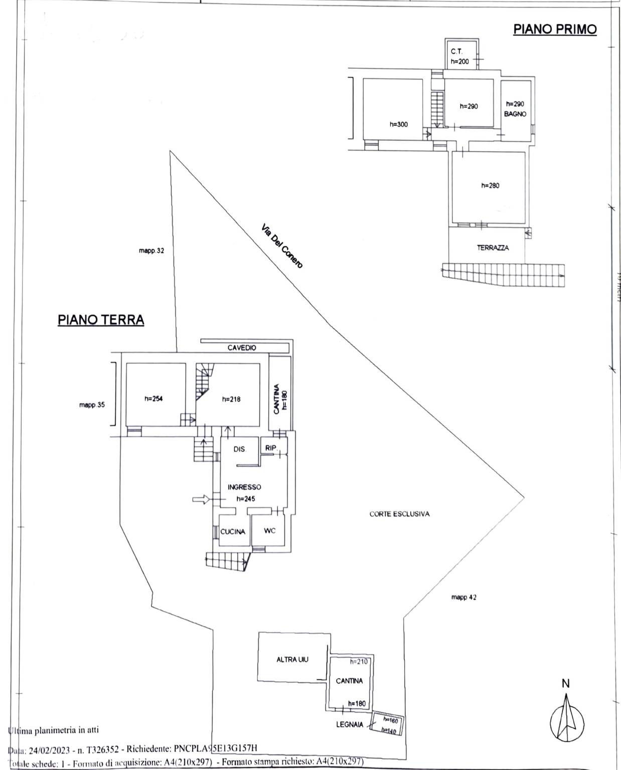
CASAPRO NUMANA propone in vendita UNA SPLENDIDA VILLA immersa nella natura incontaminata del Parco del Conero. La proprietà, che offre un PANORAMA UNICO, è circondata da 3300 mq di terreno ben curato, piantumato e completamente recintato , con un'ampia zona dedicata alla cura dei 52 ulivi. Ci troviamo a pochi chilometri da Sirolo ,( 3,2 km) , dalle spiagge più' rinomate dell'Adriatico e dai tutti i principali servizi. UN' OASI, a pochi passi da tutte le comodità! L'immobile si sviluppa su due livelli per un totale di 148 mq, ed è stato recentemente ristrutturato e finemente arredato. Il piano inferiore è composto da due ingressi e lo spazio interno è così suddiviso: sala da pranzo con comodo angolo cottura, bagno di servizio, grotta ad uso cantina, soggiorno, camera matrimoniale. Al piano superiore troviamo due camere matrimoniali , soggiorno con cucina a vista ed accesso alla terrazza, comodo e bellissimo bagno. La zona esterna è molto ben organizzata grazie alla presenza di vari annessi che attualmente sono usati come locale sgombero e locale caldaia. Bellissimo pergolato, ideale per vivere gli spazi esterni in piena convivialità. Completa la proprietà un box auto. L'attuale configurazione interna rende questa soluzione molto interessante . I due livelli sono indipendenti e possono essere utilizzati da subito come due appartamenti. Ideale per due nuclei familiari o per investimento con alta redditività.
PER INFORMAZIONI O VISITE rivolgersi al nr. 339/3066068 Benedetta CASAPRO NUMANA RIF. bDELCO6

Dettaglio immobile

Contratto Vendita
Rif ZAN*DELCO6
Prezzo € 530.000
Provincia Ancona
Comune Ancona
Zona Poggio - Massignano
Indirizzo Strada Provinciale Del Conero
Superficie 148 mq
Vani 6
Camere 3
Bagni 2
Classe energetica F (DL 192/2005)
EPI 175 kwh/m2 anno
Riscaldamento autonomo
Condizioni ottime condizioni
Anno di costruzione 1960
Arredato si
Ascensore no
Garage 17 mq
Cantina 8 mq
Parcheggio si
Giardino
Cucina angolo cottura
Terrazza si

Consistenze

Descrizione Superficie Sup. comm.
Principali
Immobile - piano terra 72 Mq 72 Mqc
Altro - piano terra 6 Mq 2 Mqc
Immobile - 1° piano 74 Mq 74 Mqc
Accessorie
Terrazza - 1° piano 10 Mq 3 Mqc
Box/Garage - piano terra 17 Mq 8 Mqc
Cantina - piano terra 8 Mq 2 Mqc
Altro - piano terra 2 Mq 0 Mqc
Totale 161 Mqc

Video

Planimetrie

Richiedi maggiori informazioni

Autorizzazione al trattamento dei dati personali+
Dichiaro di aver letto l'informativa sulla privacy ed accetto le condizioni d'utilizzo del servizio.
Riempi il campo con il codice riportato nell'immagine*
Codice Captcha
Chiamaci Contattaci