OSIMO VIA CAMPOCERASO 21 CASALE CON GIARDINO

Osimo (Ancona)

Rif: ALBA 119
Condividi Linkedin Whatsapp Stampa
€ 369.000
Rustico casale
297 Mq
8 Vani
Giardino 1.980 mq
Classe energetica B
4 Camere
2 Bagni
Caratteristiche principali:
• Superficie: 297 m²
• Locali: 5+
• Camere da letto: 4
• Bagni: 2
• Giardino: 1.980 m²
• Posti auto: 4/5 in area scoperta
• Prezzo: Eu.395.000
• Classe energetica: B (≥ 175 kWh/m² anno)

Immergiti nella tranquillità della campagna marchigiana con questo splendido casale recentemente ristrutturato, situato in via Campoceraso, Osimo. A pochi chilometri dal centro storico di Osimo e a soli 25 minuti da Ancona, questa proprietà offre un perfetto equilibrio tra vita rurale e accesso ai principali servizi, tra cui supermercati, negozi e ospedali.

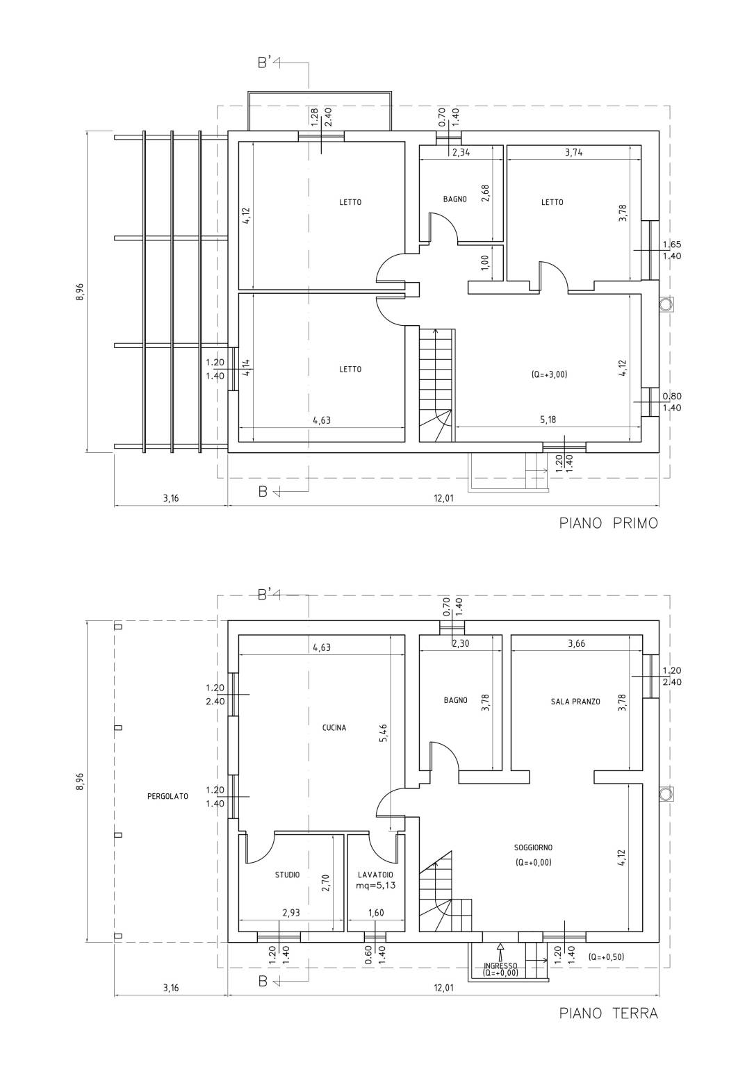
La residenza si sviluppa su due livelli:
• Piano terra: un ampio open space con soggiorno, uno spazio attualmente adibito a camera, ma che potrebbe essere utilizzato come estensione della zona giorno o come ufficio, un'ampia cucina abitabile con accesso al giardino, uno studio, una lavanderia/disbrigo e un bagno.
• Primo piano: 3 ampie camere da letto, un soggiorno con camino, un bagno e un balcone con vista panoramica.

Il casale è dotato di tecnologie moderne per garantire comfort e sicurezza:
• Impianto di domotica con sensori intelligenti per una gestione efficiente della casa.
• Sistema di videosorveglianza con telecamere smart e allarmi per una sicurezza totale.
• Pannelli solari per la produzione di acqua calda, contribuendo al risparmio energetico.
• Centrale termica con idrostufa a pellet e riscaldamento a pavimento alimentato da fotovoltaico.

All'esterno, il giardino pianeggiante di quasi 2.000 m² ospita una varietà di alberi da frutto, tra cui peschi, ciliegi, ulivi e prugni, offrendo uno spazio ideale per momenti di relax all'aria aperta. Un pergolato esterno completa l'area, perfetto per cene estive o semplicemente per godersi la natura circostante.
Questa proprietà rappresenta un'opportunità unica per chi desidera vivere in un ambiente sereno senza rinunciare alla vicinanza ai servizi essenziali.


CASALE RISTRUTTURATO RECENTEMENTE CON OTTIME RIFINITURE ,IMPIANTO DI VIDEOSORVEGLIANZA, DOMOTICA,CENTRALE TERMICA CON IDROSTUFA A PELLET, PANNELLI SOLARE ,ANTIFURTO.
L'IMMOBILE E' POSIZIONATO SU 2 LIVELLI E COSI' COMPOSTO: AL PIANO TERRENO UN AMPIO SPAZIO A GIORNO UNA CUCINA ABITABILE, STUDIO E AMPIO SOGGIORNO ,LAVANDERIA/DISBRIGO E BAGNO, AL PRIMO PIANO 3/4 CAMERE DA LETTO UN BAGNO E BALCONE ,PERGOLATO ESTERNO E GIARDINO PIANEGGIANTE DI MQ 2000,
LA PROPRIETA' E' POSIZIONATA IN UN AREA TRANQUILLA E CON COMODO ACCESSO DALLA VIA DI JESI ,A POCHI MINUTI DAL CENTRO STORICO DI OSIMO
OTTIME RIFINITURE ,IMPIANTO DI VIDEOSORVEGLIANZA, DOMOTICA,CENTRALE TERMICA CON IDROSTUFA A PELLET, SOLARE TERMICO,ANTIFURTO.

Dettaglio immobile

Contratto Vendita
Rif ALBA 119
Prezzo € 369.000
Provincia Ancona
Comune Osimo
Indirizzo Via Campoceraso 21
Superficie 297 mq
Vani 8
Camere 4
Bagni 2
Classe energetica B (DL 192/2005)
EPI 175 kwh/m2 anno
Riscaldamento autonomo
Condizioni ottime condizioni
Anno di costruzione 2003
Arredato si
Ascensore no
Parcheggio si
Giardino 1.980 Mq
Cucina abitabile
Balcone si

Consistenze

Descrizione Superficie Sup. comm.
Principali
Immobile - piano terra 98 Mq 98 Mqc
Immobile - 1° piano 98 Mq 98 Mqc
Giardino/Resede 1.980 Mq 99 Mqc
Altro - piano terra 18 Mq 2 Mqc
Totale 297 Mqc

Planimetrie

Richiedi maggiori informazioni

Autorizzazione al trattamento dei dati personali+
Dichiaro di aver letto l'informativa sulla privacy ed accetto le condizioni d'utilizzo del servizio.
Riempi il campo con il codice riportato nell'immagine*
Codice Captcha
Chiamaci Contattaci